Revitalization and transformation of a listed farm building into a shared living environment

  • Years: 2018 - 2021
  • Location: Attalens (CH)

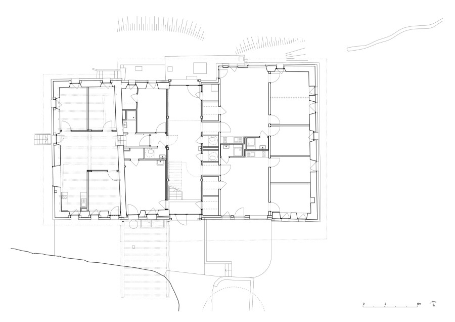
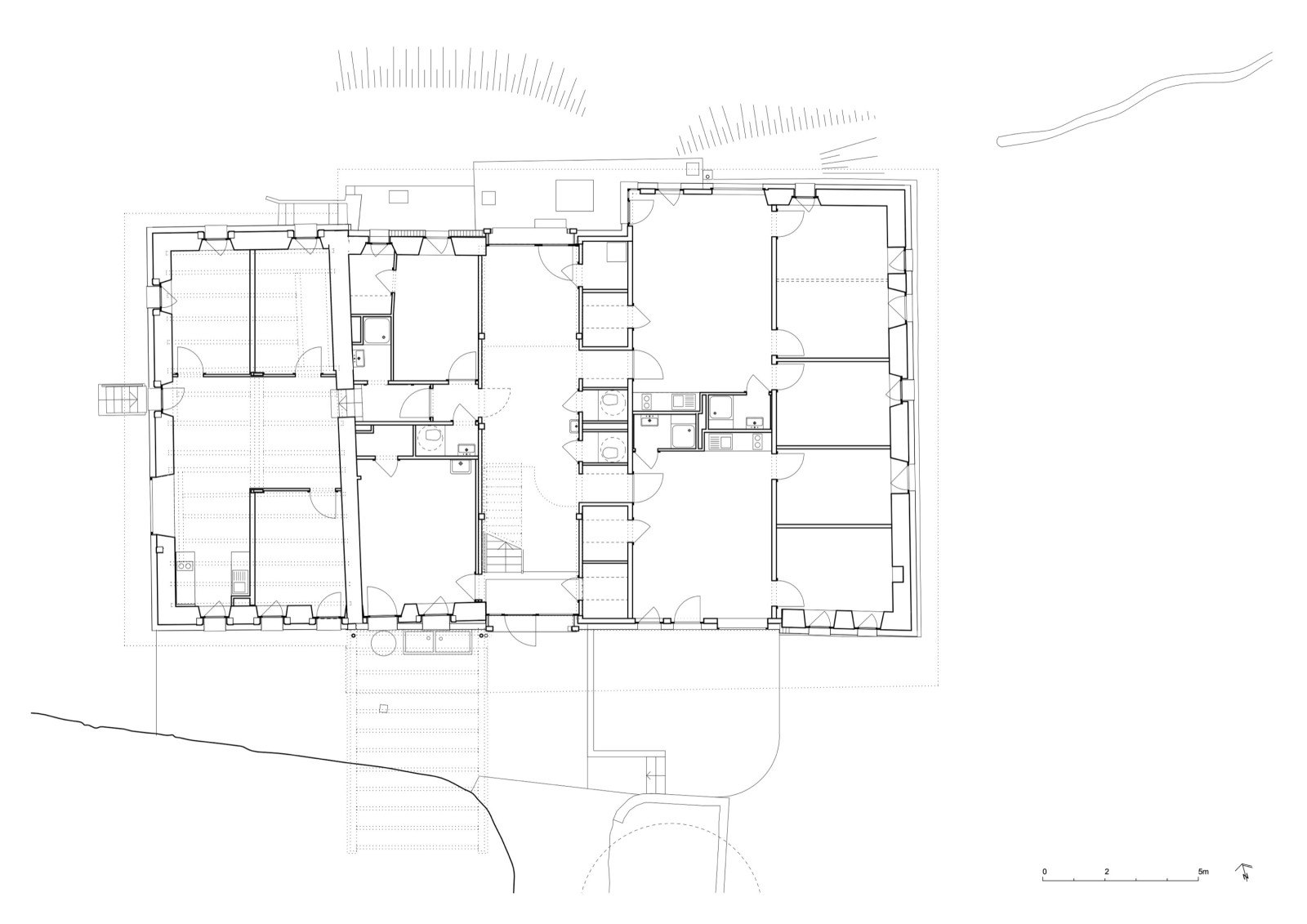
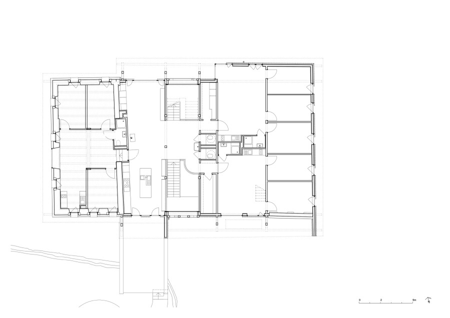
In Attalens, the listed Rombuet farm has been transformed into a resolutely innovative living space combining collective housing and private space. Led by the residents' cooperative ‘Les Coloriés’, this project was designed as a large house and offers six private dwellings with limited floor space, organised around generous communal areas: a fully equipped kitchen, pantry, dining room, terrace, workshop, office, lounge, and shared bedrooms. The project enhances the existing structure: the original masonry has been preserved and insulated, raw materials and sober finishes have been used, and a new wooden structure has been added that is faithful to the old framework. The openwork larch cladding allows for large openings while preserving the character of the farmhouse. The construction approach is understated, local and sustainable: worm composting toilets, rainwater harvesting tank, biotope, vegetable garden and orchard. This project invites us to rethink the way we inhabit: how can we live in the countryside with a reduced impact, sharing resources while preserving privacy?

Here, the collective is a response that is simple, pragmatic and respectful of the rural environment.

Project developed in collaboration with Veluzat Architectes

Civil engineering: NormalOffice

Building physics and Acoustic engineering: Enerconseil

Project Owner: Coopérative d'habitation Les Coloriés